All Sport 4100: How do I setup Daktronics AMB interface

Potential Symptoms

  • Setup Daktronics AMB interface

Environment

  • Product: All Sport 4100, Daktronics Motorsports Interface (AMB interface)
  • Components: MOXA U1110 serial adapter (A-2221)
  • Control System: Oval Track Racing

Resolution

  1. Turn on the All Sport(s)
  2. Reference this table for the correct code

  3. Race tracks typically use the automatic modes for an Omega or AMB protocol. 
  4. After the proper code is entered select the Menu Key and use the up or down arrow keys
  5. Blank on 1st - Blanks all positions but 1st place which shows the time

    Race Mode - Normal run shows current leaders else its in Qualify mode that shows order of best lap times

    Reset Race - Blanks all positions on the display

    Restart Game - Restarts sport with default settings

    Show Passing - Sets to display all car passing times only when in qualify mode
  6. Start the AMB Interface for Windows software

  7. Select Port #1

  8. Configure the port to the appropriate settings listed above (port and baud may vary)
  9. Make sure the Y-cable is connected to the AMB system.
  10. Click on the General
    The input protocol can be configured appropriately and most of the time the AMB Standard Protocol is used



    The output protocol can be configured appropriately for the All Sport by selecting All Sport



    A secondary output can be configured for Venus 7000
  11. The AMB operator can send race information using ALT+F1

    This will update the Status section of the program|

  12. Click on the MONITOR #1 button and make sure there's data coming through on the top window

  13. Prior to each race press the Clear button.
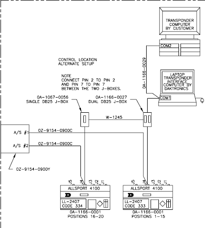
  14. Wire up the All Sport(s) based on the following

  15. Additional information can be found in ED-11058.

KB ID: DD2327589


DISCLAIMER: Use of this content may void the equipment warranty, please read the disclaimer prior to performing any service of the equipment.

DAKTRONICS DOES NOT PROMISE THAT THE CONTENT PROVIDED HEREIN IS ERROR-FREE OR THAT ANY DEFECTS WILL BE CORRECTED, OR THAT YOUR USE OF THE CONTENT WILL PROVIDE SPECIFIC RESULTS. THE CONTENT IS DELIVERED ON AN "AS-IS" AND "AS-AVAILABLE" BASIS. ALL INFORMATION PROVIDED IN THIS ARTICLE IS SUBJECT TO CHANGE WITHOUT NOTICE. DAKTRONICS DISCLAIMS ALL WARRANTIES, EXPRESS OR IMPLIED, INCLUDING ANY WARRANTIES OF ACCURACY, NON-INFRINGEMENT, MERCHANTABILITY AND FITNESS FOR A PARTICULAR PURPOSE. DAKTRONICS DISCLAIMS ANY AND ALL LIABILITY FOR THE ACTS, OMISSIONS AND CONDUCT OF YOU OR ANY THIRD PARTIES IN CONNECTION WITH OR RELATED TO YOUR USE OF THE CONTENT. ADJUSTMENT, REPAIR, OR SERVICE OF THE EQUIPMENT BY ANYONE OTHER THAN DAKTRONICS OR ITS AUTHORIZED REPAIR AGENTS MAY VOID THE EQUIPMENT WARRANTY. YOU ASSUME TOTAL RESPONSIBILITY FOR YOUR USE OF THE CONTENT AND ANY LINKED CONTENT. YOUR SOLE REMEDY AGAINST DAKTRONICS FOR DISSATISFACTION WITH THE CONTENT IS TO STOP USING THE CONTENT. THIS LIMITATION OF RELIEF IS A PART OF THE BARGAIN BETWEEN THE PARTIES.

The above disclaimer applies to any property damage, equipment failure, liability, infringement, or personal injury claim arising out of or in any way related to your use or application of the content, whether such claim is for breach of contract, tort, negligence or any other cause of action.